Descrizione
La proprietà, completamente indipendente e libera su tutti e quattro i lati, si estende su tre livelli con un piano seminterrato con un garage -cantine e fondi per una superficie complessiva di circa 580 mq lordi così ripartiti:
Piano seminterrato con fondi-cantine-garage
Piano primo 1° appartamento
Piano secondo 2° appartamento
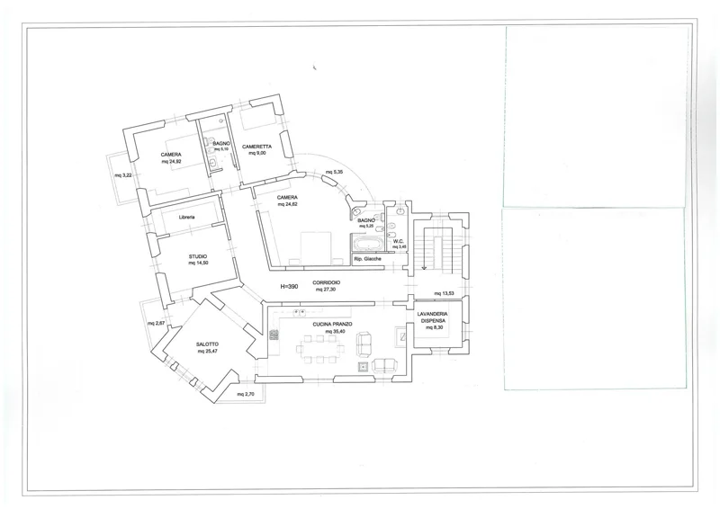
Al piano Primo si accede dalla porta principale che ci conduce al primo appartamenti dove troviamo un grande e luminoso salone con camino. Da qui si passa poi allo studio, alla grande sala da pranzo con tavolo per sedici persone, a una spaziosa cucina, alle camere ed ai bagni. All’esterno, un grazioso giardino.
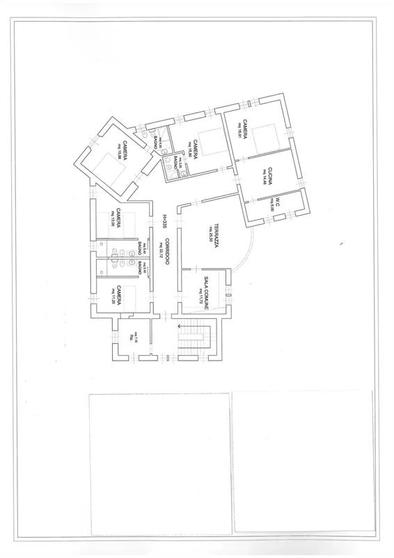
Al piano superiore, raggiungibile tramite lo scalone monumentale al centro del piano primo, si trova il secondo appartamento composto da sei camere, una grande cucina, un bagno ed un bellissimo terrazzo con camino che affaccia sulla splendida vista della città di Foligno.
Al piano seminterrato di circa 450 mq troviamo i garage, le cantine ed i fondi.
POTENZIALITÀ E UTILIZZO
Una proprietà prestigiosa, comoda da vivere, ideale come residenza principale, ma anche un ottimo investimento per essere inserita nel circuito degli affitti come casa vacanza.
POSIZIONE GEOGRAFICA
L’Umbria è la regione sorella della Toscana, dal territorio verde e collinare con uliveti e vigneti, ricca di città d’arte e caratteristici centri storici.
Denominata Cuore verde d’Italia e situata nell’Italia centrale fra Roma e Firenze, l’Umbria è una regione ricca di storia e di cultura, fatta di piccoli borghi storici e importanti città d’arte quali Perugia, Spoleto, Assisi, Spello, Bevagna e Montefalco .
Inoltre è teatro di grandi manifestazioni culturali durante tutto l’arco dell’anno come il Festival dei Due Mondi di Spoleto, Umbria Jazz, la rievocazione storica della Giostra della Quintana di Foligno, l’Infiorata di Spello e moltissimi altri eventi folcloristici che, in particolare nella stagione estiva, animano piccoli e grandi centri dell’intero territorio.
Ma l’Umbria è anche ricca di percorsi Eno-gastronomici partendo da Montefalco con il suo famoso Percorso del Sagrantino che tocca le più importanti cantine umbre, alla Via dell’Olio di Trevi con i suoi frantoi aperti.
Responsabile della vendita: NIGA di Marco Galasso
Via Colpernaco, 31 – 06034 FOLIGNO (PG) – CCIAA PG-302909


















